1-к, Курчатова, 38 Показать на карте
Димитровград
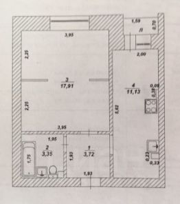
Предлагается к покупке однокомнатная квартира площадью 38,5 кв. м. Квартира находится на 7/9 этаже кирпичного дома.Отличная планировка!имеется кладовая. При желании можно увеличить площадь комнаты.Санузел раздельный.В квартире выполнен косметический ремонт. Квартира очень теплая, светлая, не угловая. Окна выходят на противоположную от подъезда сторону, что делает помещение светлым и уютным.Окна пластиковые , балкон также застеклен.( выход из комнаты )Дом находится в отличном состоянии,подъезд чистый. Доброжелательные соседи .В квартире никто не проживает, ключи день в сделки. Документы готовы ! Обременений не имеется ! Один взрослый собственник.Инфраструктура района отлично развита. В шаговой доступности детские сады и магазины, поэтому все необходимое всегда под рукой.Рассмотрим все формы расчетов.Приглашаем вас на просмотр!Звоните и записывайтесь на удобное время.Так же если вам необходимо продать свою недвижимость , поможем с ее реализацией !Гарантированно качественное юридическое сопровождение!
38 м2
7 / 9 этаж
Панель
- Показать контакты
- Добавить в избранное
38 м2
7 / 9 этаж
Панель
2 350 000
61 039 /м2
