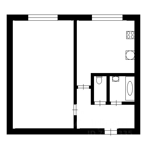
Продаётся уютная однокомнатная квартира площадью 29.8 квадратных метров на втором этаже пятиэтажного блочного дома, расположенного по адресу: город Димитровград, улица Победы, 2а. Жилая площадь составляет 18 квадратных метров, кухня 6 квадратных метров. Квартира без балкона.
Из окон открывается вид на улицу, что обеспечивает хорошее естественное освещение в течение дня. Квартира требует ремонта, что является отличной возможностью обустроить пространство по своему вкусу и потребностям. однако в квартире первое время вполне можно жить
Для молодых семей с детьми особенно актуально будет наличие во дворе детской и спортивной площадок, а также близость детского сада Журавлик и детского сада 45.
Продаётся уютная однокомнатная квартира площадью 29.8 квадратных метров на втором этаже пятиэтажного блочного дома, расположенного по адресу: город Димитровград, улица Победы, 2а. Жилая площадь составляет 18 квадратных метров, кухня 6 квадратных метров. Квартира без балкона.
Из окон открывается вид на улицу, что обеспечивает хорошее естественное освещение в течение дня. Квартира требует ремонта, что является отличной возможностью обустроить пространство по своему вкусу и потребностям. однако в квартире первое время вполне можно жить
Для молодых семей с детьми особенно актуально будет наличие во дворе детской и спортивной площадок, а также близость детского сада Журавлик и детского сада 45. Для активного отдыха и занятий спортом поблизости расположены парк и фитнес-центр.
Развитая инфраструктура района включает в себя школу, торговый центр, что значительно упрощает повседневную жизнь. Также рядом находятся различные объекты повседневного спроса, такие как пункт выдачи заказов, магазин Mr. Ko и другие торговые точки.
Приобретая эту квартиру, вы получаете не просто жильё, а комфортное пространство для жизни в спокойном районе с развитой инфраструктурой и удобствами для всей семьи.
Покажем квартиру в любое удобное для вас время. Рассмотрим любые варианты расчетов.
Кроме того, возможен обмен на 2 хр в этом же районе на среднем этаже с нашей доплатой.